软板厂关于FPC弯折区和弯折区的设计要求分享
软板的设计至关重要,其合理布局不仅直接关系到电子产品的小型化与轻薄化能否实现,更在确保电路信号稳定传输、提升产品可靠性上扮演着无可替代的关键角色。
弯折区设计要求
可以随意弯折是FPC软板的最大优势,因此它的弯折区要特别关注下,这是一个FPC项目中结构工程师给出的一个三视图图纸,这是一个副板连接主板的FPC排线,中间部分就是需要弯折的地方。

FPC设计中,对弯折区的要求很高,第一点就是弯折区内不能打孔,打孔会使弯折区铜硬度变大,影响弯折的效果和降低FPC寿命。如下图所示,箭头所指线以下为弯折区,BTB连接器的换层走线孔必须避开弯折区,不能在弯折区打孔。
第二点就是弯折区内走线尽量直,不要有弯曲,如果有弯曲,也要沿着板子方向弯曲,如下图所示,走线的弯折弧度尽量与板子弯折弧度保持相同。
第三点就是要使用网格状铺铜,网格状铜可以保存更好的弯折效果,如下图所示,上下两个BTB连接器加强部分铺全铜,中间弯折部分加网格状铺铜。
如果FPC的层数较多,各层之间的粘合的胶必然影响弯折效果,就必须对弯折区进行分层处理,如下图所示,这个时候如果弯折区内有通孔,那就比较悲剧了。

补强区设计要求
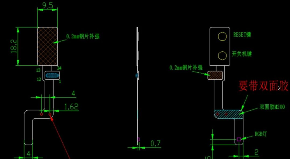
因为FPC软板很薄,一般双面板厚度0.08-0.13mm,如果在FPC上贴装连接器,就需要在连接器下板子的另外一面进行补强,如下图所示,结构给出的加工图纸中给出了补强区,在侧键和BTB连接的背面使用0.2mm的钢片进行补强设计。

软板厂FPC补强的材质一般有PI、FR4和钢片3种,如下图所示,补强区一般在金手指、按键或连接器的背面,对补强区的要求就是不能放置元器件和丝印文字等,比如丝印文字,补强后文字就被遮挡了。

另外有些EDA工程师把FPC补强板和软硬结合板容易混淆在一起,这两者是不同的东西,软硬结合板工艺比较复杂,如下图是一款软硬结合板,这个一个6层的软硬结合板,1-6层为PCB硬板,双面的FPC软板使用3-4层,把两个硬板连接起来。这样就省去了两个连接器,是硬板和软件直接压合在一起的。

ps:部分图片来源于网络,如有侵权,请联系我们删除
最新产品
医疗设备控制器软板
-

-
型 号:RS04C00269A
层 数:4
板 厚:0.3mm
材 料:双面无胶电解材料
铜 厚:1/2 OZ
特 点:产品都经过100%烧录测试
表面处理:沉金2微英寸
最小线宽/线距:0.07mm/0.06mm
数码相机软板
数码相机软板
手机电容屏软板
-

-
型 号:RM02C00712A层 数:2板 厚:0.12mm材 料:双面无胶电解材料铜 厚:1/3OZ表面处理:沉金1微英寸最小线宽/线距:0.05mm/0.05mm电磁膜:2面特 点:产品都经过100%烧录测试
手机电容屏软板
-

-
型 号:RS02C00244A层 数:2板 厚:0.12mm材 料:双面无胶电解材料铜 厚:1/3 OZ特 点:产品都经过100%烧录测试表面处理:沉金2微英寸最小线宽/线距:0.07mm/0.06mm电磁膜:2面
手机电容屏软板
-

-
型 号:RM02C00247A层 数:2板 厚:0.12mm材 料:双面无胶电解材料铜 厚:1/3 OZ表面处理:沉金1微英寸最小线宽/线距:0.07mm/0.07mm电磁膜:2面特 点:产品都经过100%烧录测试
手机电容屏软板
-

-
型 号:RM02C00892A层 数:2板 厚:0.12mm材 料:双面无胶电解铜 厚:1/3 OZ表面处理:沉金2微英寸最小线宽/线距:0.07mm/0.05mm电磁膜:2面其 他:产品都经过100%烧录测试
医疗按键软板
同类文章排行
- 2014年中国柔性线路板厂综合排名——有几家是你熟识的呢?
- 柔性电路板|| 2017年度中国电子电路PCB百强企业排行榜
- 指纹模块FPC小编带您一文了解指纹识别,看完全懂了!
- 手机FPC厂之2017年度全球PCB百强企业排行榜
- FPC厂从八个角度让你读懂指纹识别
- 2015年NTI-100全球电路板百强企业排行榜,其中中国大陆上榜企业有34家!
- pcb厂家盘点俄军经典AK系列步枪
- 指纹识别软板之各类FPC在指纹模组中的应用
- fpc软板厂家为你解析黑孔工艺
- 柔性线路板给你推送的最新资讯‖2016中国印制电路板行业50强
最新资讯文章
- 深联5月份铁粉福利大放送,快来看看你上榜了没!
- 柔性线路板行业面临哪些机遇与挑战?
- 艾香传千载,深联赠佳礼 | 一份有温度的端午仪式感
- 智能化深度实践——看深联从传统制造蝶变智能化先锋的传奇!
- 面对复杂多变的市场竞争,FPC 厂如何破局实现持续增长?
- 面对消费电子需求萎缩,软板厂怎样开拓新能源汽车等新兴应用市场?
- 深联的4月份铁粉福利名单火热出炉,速来围观!
- 扫一扫就知道前世今生?看PCB工厂如何用追溯系统实现质量“时光机”!
- 深联电路五一劳动节放假安排来啦!
- 满载而归 | 深联电路2025年慕尼黑上海电子展荣耀收官啦!








共-条评论【我要评论】